Referencia: 300132

¡¡FINCA EDIFICABLE EN CELORIO CON PROYECTO BASICO!! ¡¡A ESCASOS METROS DE LA PLAYA!!

La Cábila, Número 1

190.000

Inmobiliaria Sobrino presenta en exclusiva una excelente oportunidad en Celorio, se trata de una FINCA EDIFICABLE de 2.376,84 m² con proyecto basico incluido.

Descubre esta magnífica parcela, ideal para la construcción de una vivienda unifamiliar, ubicada en un entorno tranquilo, soleado y con gran privacidad. La parcela incluye proyecto básico incluido, junto con los trámites urbanísticos ya gestionados y estudio topográfico realizado, lo que supone un importante ahorro de tiempo y costes. Actualmente, la licencia se encuentra en trámite.

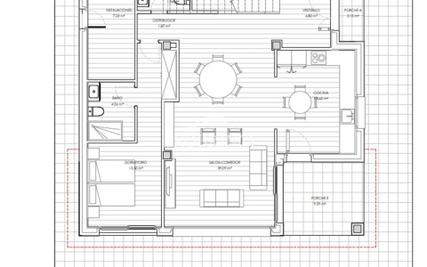
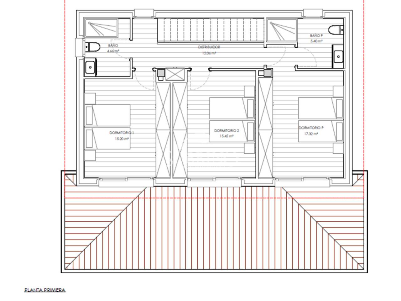
El proyecto contempla una vivienda unifamiliar de dos plantas con una superficie contruida de 206,48 m², diseñada para ofrecer comodidad, funcionalidad y una óptima orientación sur. La vivienda contará con cuatro dormitorios, uno en planta baja y tres en la planta primera.

En la planta baja se desarrollan las zonas de día, incluyendo cocina, salón, baño, despensa y un dormitorio, con una distribución pensada para aprovechar al máximo la luz natural, orientando las estancias principales hacia el sur y las zonas de servicio hacia el norte.

La vivienda contará además con un porche principal en planta baja, ideal para disfrutar del entorno. En cuanto a las calidades y sistema de calefacción, la propiedad dispondrá de un sistema de aerotermia para la producción de agua caliente sanitaria y calefacción mediante suelo radiante, así como un sistema de ventilación mecánica con recuperador de calor, garantizando eficiencia energética y confort. Los pavimentos serán en general de gres porcelánico. Asimismo, el proyecto ha sido diseñado para permitir el acceso y la circulación de personas con movilidad reducida, cumpliendo criterios de accesibilidad.

Situada en una zona residencial de Celorio, se encuentra a pocos minutos a pie de algunas de las playas más bonitas de la zona, como Playa de Palombina, Playa de Troenzo y Playa de Barro, conocidas por su belleza y entorno natural. A tan solo 5 minutos en coche de Llanes, donde encontrarás todo tipo de servicios como ocio, restauración, comercios, centros educativos, centro de salud, farmacia y zonas deportivas. En Celorio también dispones de servicios básicos como restaurantes, comercios y tiendas locales, todo al alcance de la mano.

No dejes escapar esta gran oportunidad tanto para quien busca construir su vivienda habitual con gran parte del proceso ya avanzado.

Contacta con Inmobiliaria Sobrino para más información o para concertar una visita.

¡¡ Ven a conocer esta parcela y haz realidad tu proyecto !!

Detalles

  • Referencia:

  • 300132

  • Estado:

  • En Venta

  • Tipo:

  • Terreno

  • Precio:

  • 190.000

  • Estado conservación:

  • Buen estado

  • Superficie:

  • 2377 m²

Características

Situación La Cábila, Número 1

Propiedades Similares

Ref. 300128
  • Exclusiva
Ref. 300126
  • Exclusiva

Cookies de Sobrino

Utilizamos cookies propias y de terceros para permitir su navegación, personalizar los contenidos, analizar el tráfico generado, y para el correcto funcionamiento de sus sesión, asimismo, recogemos sus datos de ubicación y características del dispositivo. Para obtener más información sobre las cookies consulte nuestra política de cookies.

Cookies necesarias
Cookies analíticas
Cookies marketing