Referencia: 200188

VIVIENDA DOS DORMITORIOS EN CONSTRUCCION EN PIÑERES DE PRIA

Piñeres De Pria, Número 1

385.000

En el corazón de la costa oriental asturiana, en el encantador entorno de Piñeres de Pría, Inmobiliaria Sobrino presenta esta exclusiva vivienda unifamiliar actualmente en fase de construcción, una excelente oportunidad para estrenar hogar en un enclave privilegiado donde la tranquilidad del entorno rural se combina con la cercanía al mar.

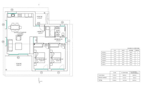
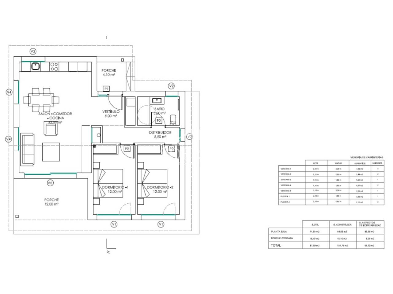
La propiedad contará con una superficie construida de 104,75 m², distribuida de forma funcional en un agradable distribuidor, dos dormitorios, un baño completo y un luminoso espacio abierto de salón-comedor-cocina, concebido para ofrecer comodidad, amplitud y una vida práctica sin renunciar al estilo.

La vivienda dispondrá de dos porches que aportan un valor añadido diferencial: uno con orientación sur, ideal para aprovechar al máximo la luz natural durante todo el día, y otro en la entrada con orientación norte, que aporta carácter y funcionalidad al acceso.

Todo ello se sitúa sobre una amplia parcela de 963 m², un espacio con múltiples posibilidades donde crear zonas ajardinadas, áreas de descanso o incluso personalizar el exterior a su gusto, en un entorno de absoluta calma y privacidad.

En cuanto a sus calidades, la vivienda ha sido concebida con un enfoque actual que combina diseño, funcionalidad y eficiencia. El baño contará con plato de ducha de gran formato en resina, sanitarios de diseño en color blanco, grifería monomando con sistema de ahorro, mueble con lavabo sobre encimera, espejo integrado y mampara, creando un espacio moderno y cuidado al detalle.

La cocina, de líneas actuales y gran capacidad de almacenaje, dispondrá de encimera de material compacto tipo Silestone o similar y estará completamente equipada con electrodomésticos integrados: placa de inducción, horno y microondas multifunción, campana extractora, frigorífico, lavavajillas y lavadora-secadora, además de fregadero con grifería de diseño, ofreciendo un espacio funcional y listo para su uso desde el primer día.

En el apartado de instalaciones, la vivienda incorporará soluciones propias de obra nueva orientadas al confort y la eficiencia energética, como sistema de aerotermia para la producción de agua caliente sanitaria, calefacción mediante estufa de pellets con distribución de calor a todas las estancias, incluido el baño, y ventilación mecánica controlada con recuperador de calor, garantizando bienestar y calidad del aire durante todo el año.

Uno de los grandes atractivos de esta propiedad es, sin duda, su ubicación. A escasos minutos se encuentran algunas de las playas más espectaculares del litoral asturiano: la Playa de Guadamía, famosa por sus impresionantes bufones, la Playa de Cuevas del Mar, con sus formaciones rocosas únicas, o la singular Playa de Gulpiyuri, considerada una de las más especiales del mundo. Un entorno natural incomparable que convierte esta vivienda en un verdadero refugio.

Además, su cercanía a localidades como Nueva de Llanes o Ribadesella permite disfrutar de todos los servicios, gastronomía y ambiente característico de la zona, combinando perfectamente naturaleza y comodidad.

Desde Inmobiliaria Sobrino trabajamos para ofrecer propiedades con alto valor añadido en ubicaciones estratégicas, y esta vivienda representa una oportunidad única tanto como residencia habitual, segunda vivienda o inversión en una de las zonas con mayor proyección de Asturias.

No dejes pasar esta oportunidad y ven a descubrirla con nosotros.

En Inmobiliaria Sobrino hacemos que encontrar tu hogar sea una experiencia sencilla, cercana y segura.

Detalles

  • Referencia:

  • 200188

  • Estado:

  • En Venta

  • Tipo:

  • Casa

  • Precio:

  • 385.000

  • Estado conservación:

  • A estrenar

  • Orientación:

  • Sur

  • Superficie:

  • 105 m²

  • Habitaciones:

  • 2

  • Baños:

  • 1

Situación Piñeres De Pria, Número 1

Propiedades Similares

Cookies de Sobrino

Utilizamos cookies propias y de terceros para permitir su navegación, personalizar los contenidos, analizar el tráfico generado, y para el correcto funcionamiento de sus sesión, asimismo, recogemos sus datos de ubicación y características del dispositivo. Para obtener más información sobre las cookies consulte nuestra política de cookies.

Cookies necesarias
Cookies analíticas
Cookies marketing