Referencia: 200177
Andrin, Número 1
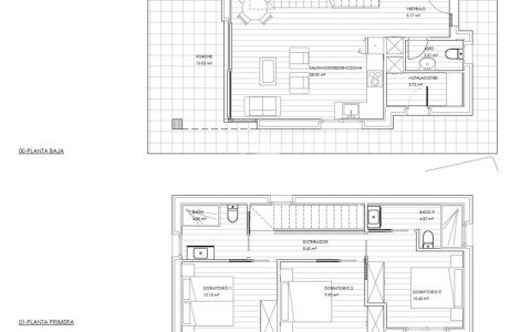
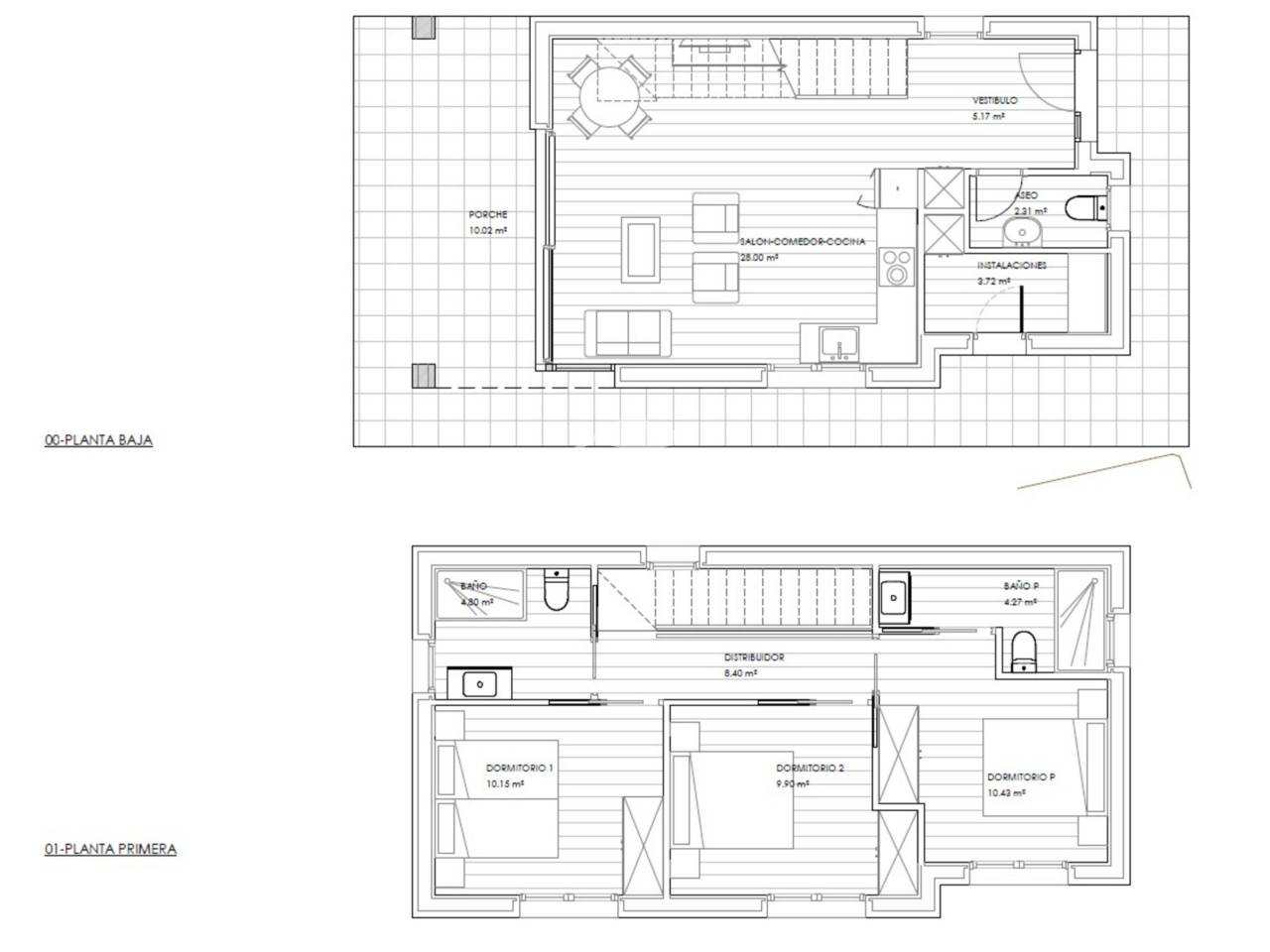
Casa de obra nueva con una superficie de 123m2 distribuida en:
Planta baja: con porche, salón-comedor-cocina y aseo.
Planta primera: Distribuidor que da acceso a 3 dormitorios, uno de ellos con baño en suite y 1 baño compartido.
Situada a escasos metros de la playa de Andrín y a poco más de 1 km del campo de golf.
MEMORIA DE CALIDADES
----------------------
FACHADAS:
•	Fachada formada en su exterior por termoarcilla revestida con un Sistema de Aislamiento Térmico Exterior (SATE). El acabado del mismo se resuelve con un revestimiento continuo de mortero acrílico y se coloca un zócalo de piedra natural, según diseño definido por la dirección facultativa, y por el interior con aislamiento térmico-acústico de lana mineral (ISOVER) y cierre del trasdosado de placa de yeso laminado (PLADUR).
CUBIERTA:
•	La cubierta será inclinada, aislada térmicamente con panel sándwich e impermeabilizada con lámina transpirable, con teja mixta curva sobre enrastrelado. Canalones y bajantes de aluminio lacado.
TABIQUERÍA INTERIOR:
•	Tabiquería interior con sistema placa de yeso laminado (PLADUR) con 2 placas en cada lado del armazón metálico, el espacio intermedio relleno de aislamiento térmico-acústico de lana mineral, a excepción de baños y cocinas donde ira una placa para revestir con la plaqueta cerámica, en el lado del cuarto húmedo.
CARPINTERÍA EXTERIOR:
•	Puerta de entrada a la vivienda de aluminio lacado bicolor acristalada.
•	Ventanas y puertas practicables de aluminio lacado bicolor.
•	Doble acristalamiento con aislamiento térmico. Vidrios laminados en ventanales de salida a balcones/ porches.
•	Persianas enrollables de aluminio en los dormitorios. Motorizadas.
CARPINTERÍA INTERIOR:
•	Puertas interiores de paso premarcadas con acabado lacado.
•	Armarios empotrados, en dormitorio principal y secundario, con puertas abatibles o correderas, a juego con las de paso, revestidos interiormente con tableros estratificados de melanina acabado textil, balda interior para la división de maletero, barra de colgar y cajonera.
PAVIMENTOS:
•	Plaquetas cerámicas imitación madera en toda la vivienda, excepto la huella de los peldaños de escalera que es de piedra caliza gris.
•	Plaquetas cerámicas antideslizantes para exteriores en el suelo de accesos a la vivienda y porches, en color gris, con ligeras formaciones de pendientes para facilitar la evacuación de aguas de lluvia y riego.
REVESTIMIENTOS:
•	Baños alicatados a media altura.
•	Pintura plástica en liso anti moho de color blanco crudo en paredes y techos de toda la vivienda.
FALSOS TECHOS:
•	Falso techo en algunas zonas de la vivienda para alojar las instalaciones de ventilación, con una placa de yeso laminado (PLADUR) con aislamiento de lana de roca.
PINTURA:
•	Plástica lisa mate en colores claros en techos y paredes.
SANITARIOS:
Baños principales
•	Plato de ducha de gran formato, en material de resina de color blanco.
•	Sanitarios de diseño, en color blanco.
•	Grifería monomando negra termostática en ducha.
•	Lavabo sobre encimera con mueble cajonera de diseño según la tipología.
•	Espejo pegado retroiluminado en paramento sobre mueble encimera.
•	Mampara en el plato de ducha.
Baños secundarios
•	Plato de ducha de gran formato, en material de resina de color blanco.
•	Sanitarios de diseño en color blanco.
•	Grifería monomando negra dotada de sistema de ahorro de consumo.
•	Lavabo sobre encimera con mueble cajonera de diseño según la tipología.
•	Espejo pegado retroiluminado en paramento sobre mueble encimera.
•	Mampara en el plato de ducha.
Aseo planta baja
•	Sanitarios de diseño en color blanco.
•	Grifería monomando negra dotada de sistema de ahorro de consumo.
•	Lavabo sobre encimera con mueble cajonera de diseño según la tipología.
•	Espejo pegado retroiluminado en paramento sobre mueble encimera.
COCINA:
•	Muebles de cocina de la marca GOCOCI de gran capacidad, de diseños. actuales y marcadas líneas horizontales.
•	Encimera de material compacto tipo Silestone o similar.
•	Campana extractora.
•	Horno y microondas multifunción de integración.
•	Placa vitrocerámica de inducción.
•	Frigorífico y lavavajillas de integración.
•	Lavadora.
•	 Fregadero con grifería monomando de diseño vertical actual.
•	Tomas de agua, electricidad y desagüe para lavavajillas en cocina.
VENTILACION:
•	Ventilación mecánica controlada con recuperador de calor en toda la vivienda, según CTE “Salubridad”.
INSTALACIÓN DE ELECTRICIDAD:
•	La instalación eléctrica será legalizada ante Dirección General de Industria de Asturias.
•	Punto de luz y enchufe en porche.
•	Óculos en pasillo de entrada, salón-comedor-cocina y subida de escalera.
•	Focos en el perímetro exterior de la fachada.
INSTALACIONES DE TELECOMUNICACIONES:
•	Dispondrá de acceso a telecomunicaciones preparado para la incorporación de televisión por cable y digital.
•	Tomas de televisión y teléfono en salón, cocina y dormitorios.
•	Portero automático en control principal de acceso a la parcela.
CALEFACCIÓN Y AGUA CALIENTE SANITARIA:
•	Instalación de calefacción y agua caliente sanitaria, mediante aerotermia.
•	Para la calefacción se dotará a la vivienda de un sistema de red de tuberías ocultas (suelo radiante) reguladas por un equipo de control de temperatura centralizado. 
VENTILACIÓN:
•	Ventilación mecánica controlada con recuperador de calor en toda la vivienda, según CTE “Salubridad”.
EXTERIOR PARCELA:
•	Portón automático corredero para entrada de vehículo y acceso peatonal a parcela automatizado y con célula de seguridad.
•	Muro perimetral de cierre de parcela rematado con cierre metálico sobre muro.
•	Ajardinamiento de la parcela con césped, árboles frutales y plantas.
TV Y TELÉFONO:
•	Instalación de antena para la recepción de televisión digital terrestre, con tomas en salón y dormitorios.
•	Tomas para teléfono en salón y dormitorios.
No dudes en contactanos para cualquier consulta o para coordionar una visita.
¡¡ No dejes escapar esta oportunidad o te arrepentiras !!
Referencia:
200177
Estado:
En Venta
Tipo:
Casa
Precio:
490.000
Estado conservación:
A estrenar
Orientación:
Sur
Superficie:
123 m²
Habitaciones:
3
Baños:
3
 
												
											Ref. 200129
Meluerda, Número 1