Referencia: 200190

ESTRENA VIVENDA DE OBRA NUEVA EN LA GALGUERA

La Galguera, Número 1

395.000

En el exclusivo entorno de La Galguera, Llanes, una de las zonas más demandadas del oriente asturiano, Inmobiliaria Sobrino presenta esta cuidada vivienda, diseñada para quienes buscan confort, eficiencia y calidad de vida en un entorno natural privilegiado.

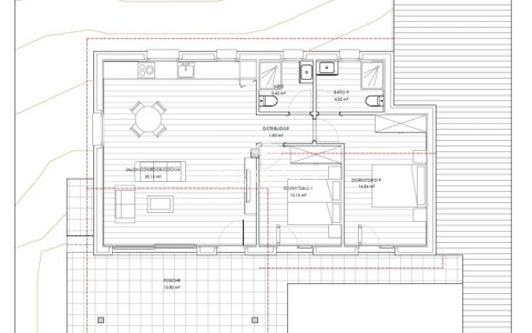
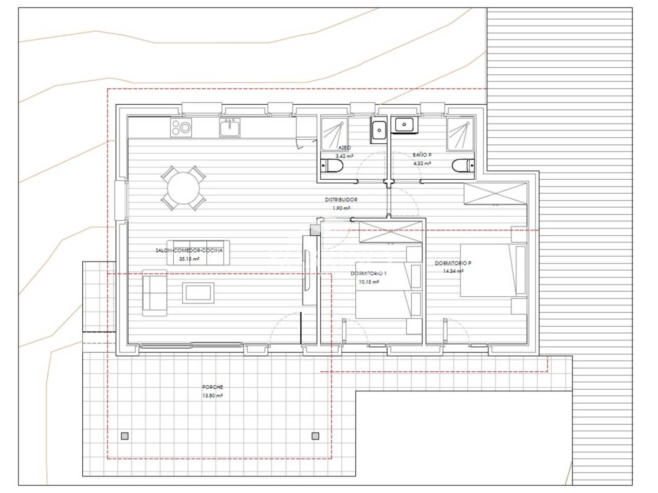
La vivienda se distribuye en un amplio y luminoso espacio de salón-comedor-cocina en concepto abierto, concebido como el corazón del hogar, ideal para disfrutar tanto del día a día como de momentos de ocio. Dispone de dos dormitorios, destacando el principal con baño en suite, y un segundo baño completo que da servicio al resto de la vivienda. Cuenta a su vez con un cuarto de instalaciones ubicado en la planta sotano el cual ocupa toda la planta de la vivienda.

Uno de los grandes atractivos de esta propiedad es su amplio porche con orientación sur, un espacio perfecto para disfrutar de la luz natural durante todo el día, comidas al aire libre o momentos de descanso en un entorno tranquilo y acogedor.

La vivienda ha sido proyectada con un alto nivel de calidades, incorporando soluciones modernas orientadas al confort y la eficiencia energética. Cuenta con sistema de aerotermia para calefacción y agua caliente sanitaria, combinado con suelo radiante mediante red de tuberías ocultas, lo que garantiza una climatización homogénea y eficiente en todas las estancias. Además, dispone de ventilación mecánica controlada con recuperador de calor, asegurando una óptima calidad del aire interior durante todo el año.

En los baños, se ha apostado por un diseño actual y funcional, con platos de ducha de resina, sanitarios de líneas modernas, muebles con lavabo sobre encimera y espejos integrados. El baño principal incorpora grifería termostática, aportando un plus de confort, mientras que el secundario cuenta con grifería monomando de bajo consumo, todo ello acompañado de mamparas instaladas.

La cocina, de la reconocida marca GOCOCI, ofrece un diseño contemporáneo con gran capacidad de almacenaje y líneas limpias, equipada con encimera de material compacto tipo Silestone o similar y electrodomésticos integrados: placa de inducción con extracción de humos incorporada, horno y microondas multifunción, frigorífico, lavavajillas y lavadora, creando un espacio funcional, elegante y listo para su uso desde el primer día.

Ubicada en un entorno tranquilo y bien comunicado, esta vivienda permite disfrutar de la cercanía a Llanes y sus playas, combinando la calma del entorno rural con todos los servicios a pocos minutos.

Una oportunidad ideal tanto como residencia habitual, segunda vivienda o inversión, en una de las zonas con mayor proyección del norte de Asturias.

No dejes pasar esta oportunidad y ven a visitarla con Inmobiliaria Sobrino.

Detalles

  • Referencia:

  • 200190

  • Estado:

  • En Venta

  • Tipo:

  • Casa unifamiliar

  • Precio:

  • 395.000

  • Estado conservación:

  • A estrenar

  • Orientación:

  • Sur

  • Superficie:

  • 97 m²

  • Habitaciones:

  • 2

  • Baños:

  • 2

Características

Situación La Galguera, Número 1

Cookies de Sobrino

Utilizamos cookies propias y de terceros para permitir su navegación, personalizar los contenidos, analizar el tráfico generado, y para el correcto funcionamiento de sus sesión, asimismo, recogemos sus datos de ubicación y características del dispositivo. Para obtener más información sobre las cookies consulte nuestra política de cookies.

Cookies necesarias
Cookies analíticas
Cookies marketing